Cable Tray Automatic Baling Machine
      
                1. Pagbutihin ang kahusayan sa produksyon: Ang awtomatikong baling machine ay gumagamit ng isang automated na operating system, na maaaring patuloy na makumpleto ang pagkilos ng baling, na lubos na nagpapataas ng bilis ng produksyon. Kung ikukumpara sa manu-manong packaging, ito ay mas mahusay at nakakatulong na paikliin ang ikot ng produksyon.
2. Makatipid sa mga gastos sa paggawa: Ang awtomatikong baling machine ay maaaring palitan ang maraming mga manwal na manggagawa para sa pagpapatakbo ng packaging, na binabawasan ang pamumuhunan ng kumpanya sa human resources at binabawasan ang mga gastos sa paggawa.
Mga pangunahing bahagi at parameter
Paglalarawan ng Pangalan
Ang pangunahing katawan ng frame ay hinangin mula sa 80x80x3 square tubes
Ang mga conveyor belt ay gawa sa mga makapal na anti-skid conveyor belt
Ang turning lever Q235 plate ay laser cut at pinoproseso
Pinapatakbo ng pneumatic lifting ang material turning lift
Ang mga drive shaft ay gawa sa 45# steel, at ang ibabaw ay nilagyan ng Luo.
Ang mga slideway ay gumagamit ng precision square rails
Screw 2525 ball screw
Iangat ang servo motor
Ang mainit na natutunaw na baler
Paglalarawan ng Pangalan
Power supply, power 220v/50Hz 500w
Bilis ng pag-pack ≤1.5 segundo/lane
Naaangkop na kapal ng strap (0.45-1.0) mm*lapad (9-15) mm
Mga Tampok: Huwag kailanman mawawala ang tape, electronic detection
CNC display, simpleng operasyon
Ang mga pamantayan ng accessory ay batay sa Milan, Germany
Bahagi ng traksyon
Paglalarawan ng Pangalan
Ang pangunahing katawan ng frame ay hinangin mula sa 80x80x3 square tubes
Mobile power servo motor na may reducer at rack at pinion transmission
Ang slide ay gawa sa 45# steel, na may high-frequency heat treatment at Luo plating sa ibabaw. Mayroon itong makapal na upuang aluminyo at nilagyan ng pinahabang slider.
Ang clamping ay gumagamit ng TN model cylinder upang maiwasan ang pag-ikot
Palletizing na bahagi
Paglalarawan ng Pangalan
Ang pangunahing katawan ng frame ay hinangin mula sa 80x80x3 square tubes
Ang pangunahing katawan ng robot ay gawa sa makapal na heavy-duty na aluminum profile.
Ang manipulator ay gumagamit ng anyo ng forking muna at pagkatapos ay pagpindot upang matiyak ang katatagan ng paghawak at ang katatagan ng paggalaw.
Ang pallet moving roller ay gawa sa 45# steel, surface plated, φ45mm solid
Umiikot na ruler: Upang matiyak ang squareness ng bawat stack ng mga kilya at hindi magasgasan ang mga kilya kapag gumagalaw, isang round ruler ang pipiliin at nilagyan ng umiikot na bearing sa loob.
⑤Kabinet ng kuryente
Pangalan Dami ng Brand Model
plc 1 display control
Plc expansion 2 display control
1 kontrol sa pagpapakita ng touch screen
Proximity switch ng ilang NPN, 24VDC, karaniwang bukas
Photoelectric switch ilang NPN, 24VDC, karaniwang bukas
Mababang boltahe ng kuryente 1 Chint
Servo motor 4 Hechuan 0.75kw
Karamihan sa mga motor ng kagamitan ay gumagamit ng mga servo motor upang gawing mas mabilis at mas nababaluktot ang kagamitan.
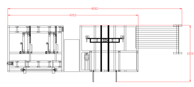
Ang haba ng kagamitan ay mga 6 na metro, ang haba ng stacking ay 2 metro, at ang kabuuang haba ay mga 8 metro.
Ang lapad ay humigit-kumulang 2.9 metro

                                            
                                                                                        
                                        
                                            
                                                                                        
                                        
